L’Assunta

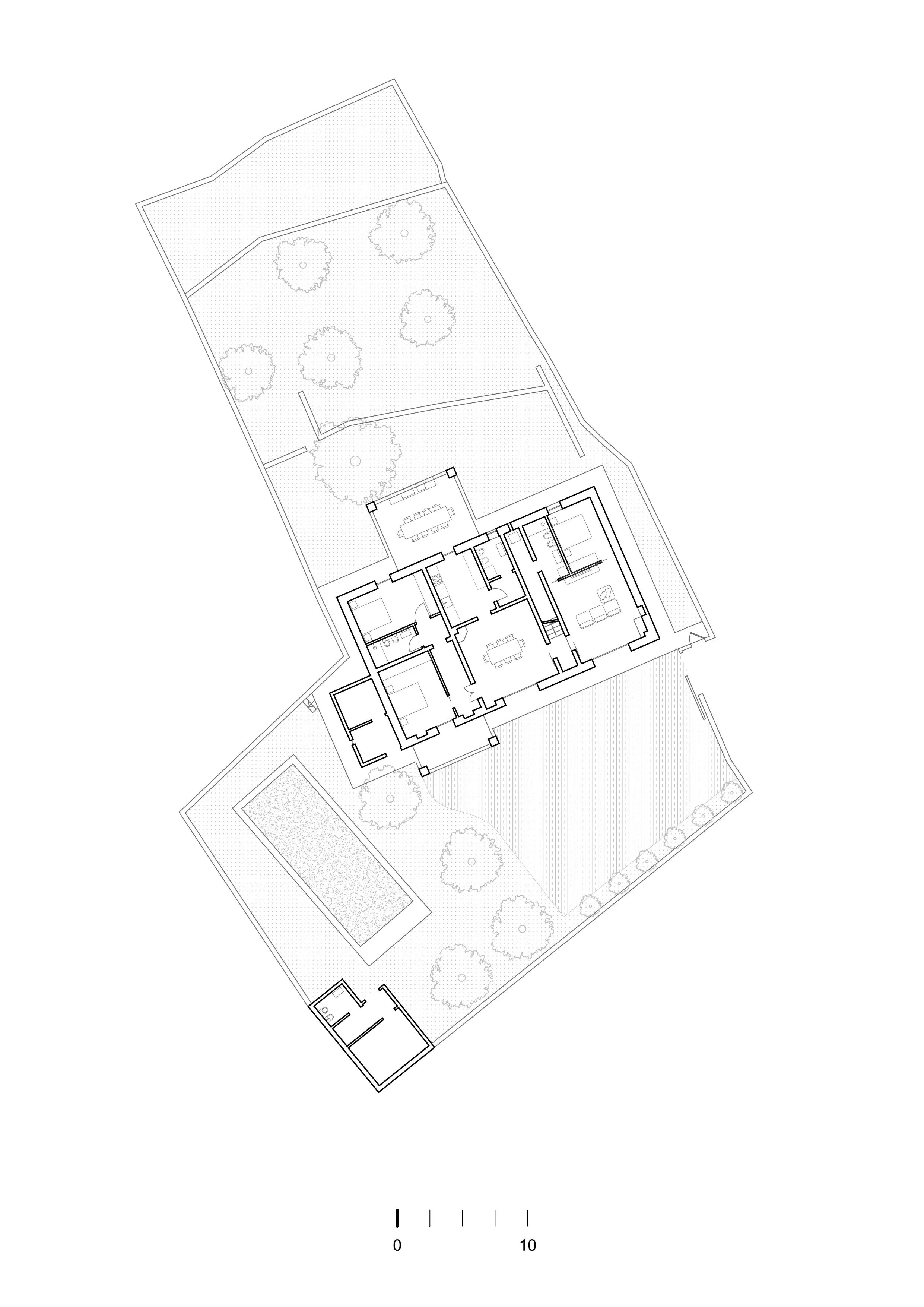
The Contrada l’Assunta house, not far from the sea, is surrounded by citrus and olive trees. The restoration of the tufa structure defines the interior space and preserves the architectural characteristics of the area it belongs to: pure shapes, symmetrical openings and significant heights.
The aim of the project is to create a profound connection between interior spaces and the surrounding landscape, thanks to designing the space in such a way that, like a pathway, it leads to and creates space for views, stays and conviviality.




Data
Type: Rustic house
Location: Monopoli, Puglia
Client: Private
Surface: Garden 1240 mq + House 200 mq
Cost: 400 k
Status: Construction site
Year: 2022 – under development



