
The property
Nestled in the beautiful hills of Verona near the town of Grezzana, the “Case Vecie” estate is a 70-hectare agricultural ecosystem, consisting of woodlands, high-altitude vineyards and farmhouses. Since 2021, the entire space has been the object of a redevelopment programme, featuring the construction of a new ‘agriturismo’.
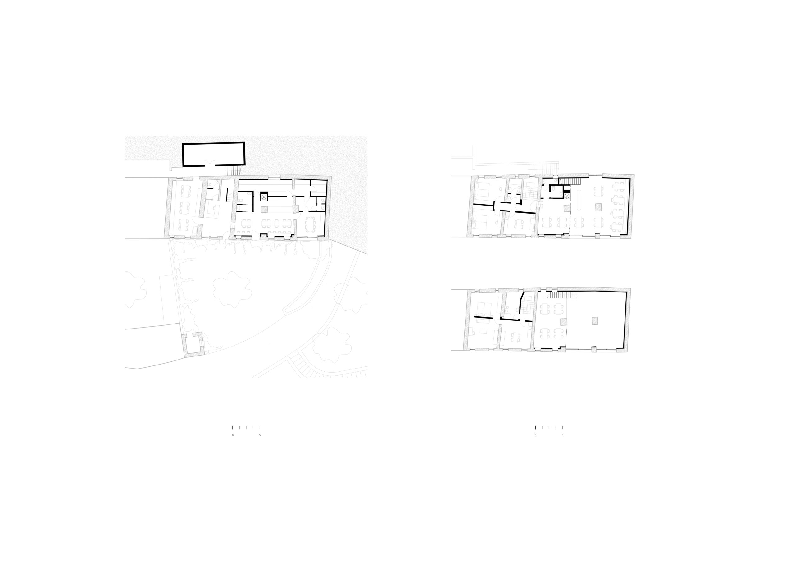
The project proposed by Studio MASAAI combines architectural and landscape interventions. The precise hospitality master plan spreads across the 70 hectare-estate, providing for a new form of slow, sustainable and experiential tourism, linked to the rediscovery of the territory.
Through a progressive, 10-year growth plan for the recovery and reuse of the existing old ruins, the construction of the new agricultural centre, and the strategic placing of glamping tents, camper pitches and new thematic routes, all for the enjoyment of the hilly landscape.
Publication
Conceived as an agritourism offering hospitality, dining, and locally-produced wine tasting experiences, the “Locanda Case Vecie” is the first project of the regeneration plan. The project aims to create a harmonious synthesis between the original character of the preserved ruins on the one hand, and the introduction of technologies and materials typical of modern wine production on the other hand.
The façade and the courtyard have been deliberately left unchanged to reflect the passage of time. Through the introduction of a green pergola and an outdoor cycle workshop, this space has become a gathering spot for those walking by and cycling tourists, who can enjoy the new network of hiking trails marked on the property.
The existing internal layout has been completely overhauled to suit the new use of the space. Substantial structural work has been carried out, including the consolidation of the foundations, the creation of a new
The ground floor features a newly introduced open space tavern (‘osteria’) with a large kitchen, including workspaces and a serving counter made of galvanized iron, and a separate, dedicated room where guests can taste and purchase the agriturismo’s very own, locally produced wine.
On the first and second floors, two fully equipped apartments have been designed with kitchens, bathrooms and bedrooms capable of hosting up to 10 people. Furthermore, on the first floor, the room traditionally used for drying grapes, known as “fruttaia”, has been converted into a double-height room with the addition of a mezzanine and a dumbwaiter that connects directly to the kitchen, making this space ideal for hosting private events.
The pre-existing materials found in the buildings, such as stone walls, tuff frames, and lime-based plasters, are combined with typical wine cellar materials, such as galvanized iron and reinforced glass, laminated fir wood and industrial concrete, obtaining a new synthesis of agricultural and material language.


























Type: Agriturismo
Location: Case Vecchie Area , Grezzana, Verona
Client: Azienda Agricola Brigaldara
Surface: 760 mq
Cost: 760,5 k
Status: Completed
Year: 2019-2023
Photographer: Francesca Iovene



